
1. Bồn cầu Inax AC-900VRN
Bồn cầu Inax AC-900VRN là dòng bồn cầu 2 khối được Inax ứng dụng đầy đủ những công nghệ mới nhất hiện nay. Sản phẩm được nghiên cứu và cải tiến vượt bậc so với các mẫu bồn cầu 1 khối thông thường.

Công nghệ xả vành Rim kiểu mới được tích hợp, hệ thống xả bao gồm nhiều cửa xả nhỏ hướng vào phía trong và thêm 1 cửa xả nước lớn giúp tăng sức mạnh xả rửa và xóa đi những vệt nước đọng hay những vết bẩn cứng đầu trên bề mặt bồn cầu.
Cùng với đó là bề mặt được phủ một lớp men sứ cao cấp Aqua Ceramic có khả năng kháng khuẩn, ngăn ngừa vi khuẩn bề mặt sứ siêu ưa nước, các chất bẩn và cặn nước sẽ được tách ra khỏi bề mặt sứ và cuốn trôi một cách nhanh chóng.
Hệ thống xả chất lượng với hai chế độ xả tiểu 4.5L và xả đại 6.5L đáp ứng được mọi nhu cầu xả rửa hàng ngày. Két nước lớn giúp lưu trữ lượng nước xả lớn, linh hoạt sử dụng. Nắp bồn cầu được làm bằng chất liệu nhựa PP kháng khuẩn, có khả năng ngăn ngừa vi khuẩn, nắp rơi êm không gây tiếng ồn giúp mang lại cảm giác thoải mái khi sử dụng.

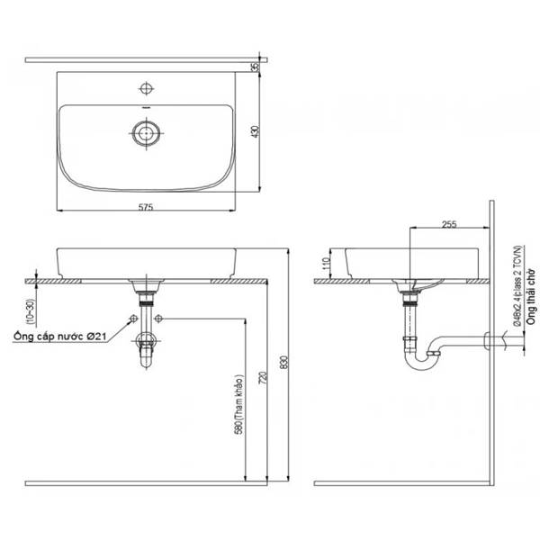
2. Chậu rửa Inax AL-632V
Chậu rửa Inax AL-S632V là sản phẩm chậu rửa đặt bàn được tích hợp công nghệ bề mặt men Aqua Ceramic cao cấp. Dòng chậu rửa hiện đại nằm trong bộ sưu tập S600 công nghệ mới bắt kịp được xu thế của thị trường. Với kích thước 428 x 110 x 574mm mẫu chậu rửa phù hợp lắp đặt cho nhiều không gian nhà vệ sinh từ nhỏ đến lớn. Có thể lắp đặt linh hoạt trên các loại bàn gỗ, bàn đá, tủ chậu…

Sản phẩm chậu rửa dòng FC là chậu rửa 1 lỗ phù hợp lắp đặt với các mẫu vòi chậu 1 lỗ cùng thương hiệu. Khách hàng có thể lựa chọn mẫu vòi chậu phù hợp để lắp đặt đáp ứng được mọi nhu cầu sử dụng. Chậu sử dụng chất liệu sứ vệ sinh cao cấp, bề mặt phủ men Aqua Ceramic kháng khuẩn, ngăn ngừa vi khuẩn cực tốt đảm bảo chậu luôn sạch sẽ sáng bóng trong thời gian dài sử dụng.

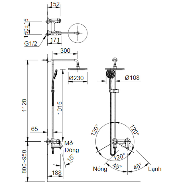
3. Sen tắm Inax BFV-915S
Sen tắm Inax BFV-915S được giới chuyên gia đánh giá khá cao về chất lượng và thẩm mỹ. Mẫu sen tắm cây hiện đại được sản xuất với dây chuyền công nghệ hàng đầu Nhật Bản, đảm bảo đạt tiêu chuẩn khắt khe từ hãng cùng nhiều tính năng hiện địa hứa hẹn mang tới cho người dùng những trải nghiệm vô cùng tuyệt vời.

Mẫu sen tắm cây sở hữu kiểu dáng hiện đại với hai bát sen bao gồm: Bát sen trần kích thước lớn, tích hợp tính năng massage nhiều chế độ; bát sen cầm tay hiện đại kích thước lớn dễ sử dụng, massage toàn bộ cơ thể khi dùng. Phần thân sen được đúc bằng đồng có độ nguyên chất cao, bề mặt mạ Crom/Niken sáng bóng, chống trầy xước cực tốt.
Củ sen thiết kế hiện đại, dễ dùng bao gồm: tay vặn điều chỉnh nhiệt độ và lưu lượng nước, vòi xả chậu cung cấp dòng nước mạnh mẽ đáp ứng được mọi nhu cầu sử dụng. Giá sen được tích hợp sẵn trên thân sen, có thể di chuyển lên xuống nhanh chóng phù hợp với chiều cao của người dùng. Một gợi ý sản phẩm sen cây hiện đại nên sử dụng cho không gian nhà vệ sinh.

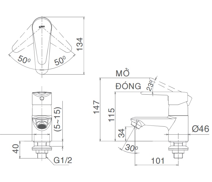
4. Vòi chậu Inax LFV-21SP
Vòi chậu Inax LFV-21SP là mẫu vòi chậu một lỗ phù hợp lắp đặt cho các dòng chậu rửa dương vành, bán âm bàn hoặc chậu rửa treo tường một lỗ. Thân vòi được đúc bằng đồng có độ nguyên chất cao lên tới 59,25 ~ 60,25%, lượng chì và kim loại nặng được giảm thiểu hoàn toàn <1%, tỉ lệ chì <0.1% đảm bảo tiêu chuẩn Nhật Bản đảm bảo an toàn tuyệt đối cho người sử dụng. Khi trải nghiệm thực tế, khi cầm trên tay sản phẩm bạn sẽ cảm thấy sự chắc chắn và vững vàng của sản phẩm này.
Lõi của sản phẩm vòi chậu Inax LFV-21SP vòi có hai đĩa sứ điều nhiệt hoạt động trơn chu, linh phụ kiện độ bền cao cho sen vòi luôn bên bỉ. Đĩa sứ hoạt động trơn tru, nhẹ nhàng suốt 100.00 vòng đóng mở và điều chỉnh nhiệt độ một cách nhanh chóng, dễ dàng.

5. Gương Inax KF-4560VA
Gương inax KF-4560VA là một trong những mẫu phụ kiện nhà tắm được đánh giá khá cao trên thị trường hiện nay. Thiết kế sản phẩm vuông vắn, góc cạnh, sang trọng phù hợp lắp đặt cho nhiều không gian nhà vệ sinh hiện đại. Bề mặt tráng gương cao cấp, không bám hơi nước, không bị ố mốc trong thời gian dài sử dụng.

Gương soi rõ nét, trong nhẵn mịn và không bị gợn sóng, phản chiếu hình ảnh chân thực. Tuổi thọ của sản phẩm có thể nên tới 10 năm sử dụng, vì vjaya mẫu gương này được ưa chuộng sử dụng ở nhiều công trình như: Chung cư cao cấp, biệt thự, nhà phố, khách sạn 5 sao, trung tâm thương mại…

6. Bộ phụ kiện nhà tắm Inax H-AC400V6
Bộ phụ kiện Inax H-AC400V6 được làm bằng chất liệu cao cấp, chịu lực và chịu nhiệt cực tốt. Độ bền của bộ sản phẩm có thể lên tới hàng chục năm sử dụng. So với chất liệu thì giá thành chỉ khoảng 700.000 là khá rẻ với một bộ sản phẩm phụ kiện nhà tắm 6 món. Tuy nhiên, Inax chỉ bán theo bộ vì vậy khách hàng sẽ khó có thể mua lẻ từng sản phẩm.

Bộ phụ kiện bao gồm:
- Thanh treo khăn Inax H-445V
- Hộp đựng giấy vệ sinh Inax CF-22H
- Kệ đựng xà phòng H-444V
- Móc áo Inax H-441V
- Kệ đựng ly Inax H-443V
- Kệ gương Inax H-442V

Có thể thấy rằng, nhu cầu mua trọn bộ thiết bị vệ sinh cao cấp, tiết kiệm thời gian và chi phí là xu hướng khá được ưa chuộng trong thời gian gần đây. Chắc hẳn với gợi ý hữu ích trên đây khách hàng đã có thể lựa chọn được sản phẩm phù hợp với không gian nhà vệ sinh của gia đình. Khách hàng có thể tham khảo thêm nhiều sản phẩm thiết bị vệ sinh Inax cao cấp khác bằng cách liên hệ trực tiếp tới hotline của Hải Linh hoặc đến những địa chỉ Showroom gần nhất để được tư vấn, báo giá.

Bồn cầu 2 khối Inax ACT-832VN xả tự động
Bồn cầu 2 khối Inax C-514VAN